






Buy The Basic Plans
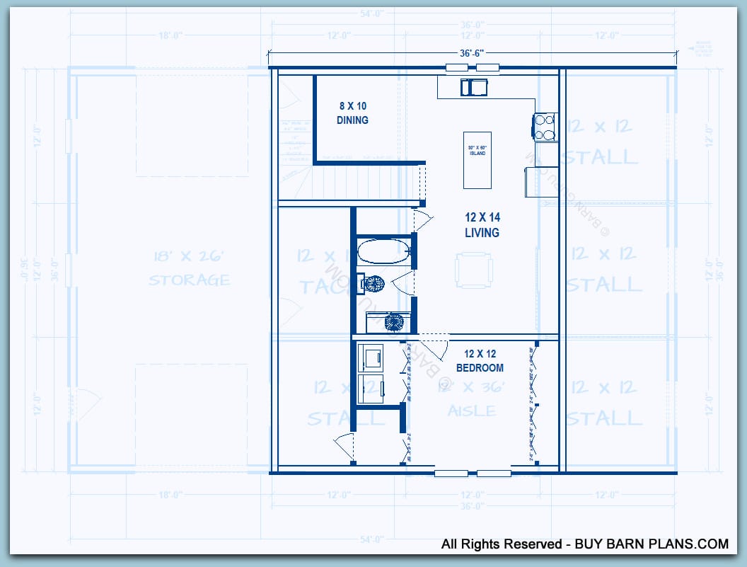
Detailed Footing, Detailed Post & Footing Layout, Detailed Floor Plan, Front Elevation, Rear Elevation, Left Elevation, Right Elevation. Elevations detail the outside dimensions and exterior finish materials.








Detailed Footing, Detailed Post & Footing Layout, Detailed Floor Plan, Front Elevation, Rear Elevation, Left Elevation, Right Elevation. Elevations detail the outside dimensions and exterior finish materials.